Politică
Actualitate
Externe
Economic
Cultură
Sport
Video
Comunicate
Evenimente
Ultima oră
Politică
Externe
Economic
Prețul apei în România
Cultură
Sport
Video
Evenimente
Marius Tucă Show
Ai Aflat! cu Ionuț Cristache
Altceva cu Adrian Artene
Cu Gândul la București
Gândul Green
Război în Ucraina
Comunicate
Poza
3
/
4
Înapoi la articol
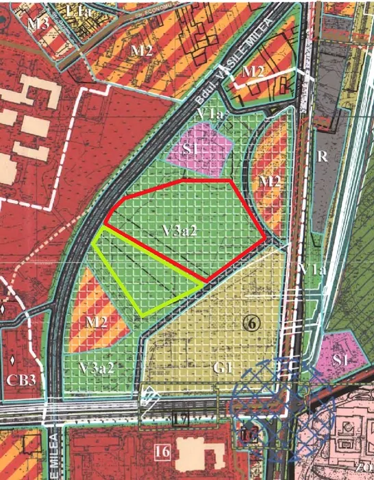
GALERIE FOTO:
Motivul pentru care primarul Ciprian Ciucu a fost amendat cu 10 mii de lei: „Nu am prelungit două certificate de urbanism pentru două turnuri în Parcul Grozăvești”
×
Caută
×
Trimite acest link pe
WhatsApp icon
mai multe...
×