Politică
Actualitate
Externe
Economic
Cultură
Sport
Video
Comunicate
Evenimente
Ultima oră
Politică
Externe
Economic
Prețul apei în România
Cultură
Sport
Video
Evenimente
Marius Tucă Show
Ai Aflat! cu Ionuț Cristache
Altceva cu Adrian Artene
Cu Gândul la București
Gândul Green
Război în Ucraina
Comunicate
Poza
4
/
7
Înapoi la articol
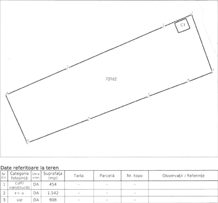
GALERIE FOTO:
Localitatea din România în care o casă costă doar 5.000 de euro, acum, în februarie 2026. Se vinde cu teren de 2.800 metri pătrați
×
Caută
×
Trimite acest link pe
WhatsApp icon
mai multe...
×