Localitatea din România în care o casă costă doar 5.000 de euro, acum, în februarie 2026. Se vinde cu teren de 2.800 metri pătrați.
O casă din localitatea Boțești, județul Vaslui, se vinde la licitație publică cu un preț de la 5.000 euro (25.000 lei).
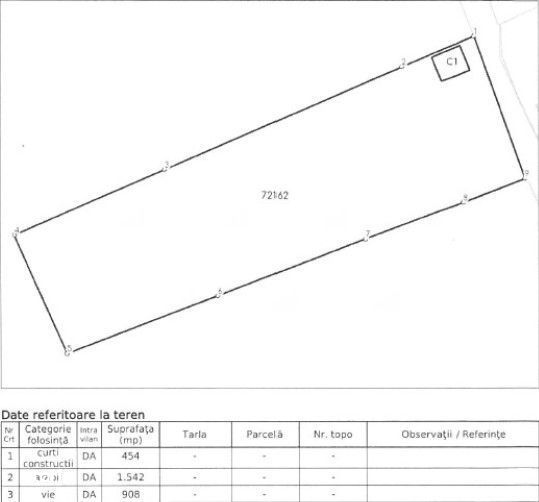
Potrivit anunțului de pe storia, casa are o suprafață de 25 mp, cu două camere și dispune de un teren intravila împrejmuit în suprafață de 2.800 mp în acte, măsurați fiind 2.904 mp, din care 454 mp având categoria de folosință „curți-construcții”, 1.542 mp având categoria de folosință „arabil”, iar 908 mp, având categoria de folosință 1 „vie”.
Construcția de locuințe C1 e o locuință cu regim de înălțime P, edificată în 1961, având suprafață construită la sol de 33 mp.
Locuința este construită din paiantă, acoperită cu țiglă. Proprietatea dispune de electricitate, accesul către teren se face din strada pietruită, cu deschidere de 31 metri.
Boțești este o comună din județul Vaslui, formată din satele Boțești (reședință), Gănești, Gugești și Tălpigeni.
Comuna Boțești are o populație de 1.736 locuitori. Primarul, Adrian Pantea (PNL), este în funcție din 2008.

Sursa foto: capturi storia
Autorul recomandă: